Foundations
The As-Built Homes Blog
“High” Resolution
The benefits of working in high resolution pay off. The effect is even more pronounced when you start zooming in - looking at details. And anyone in construction knows, the details are what matter.
Everyone Loves A Drone Shot
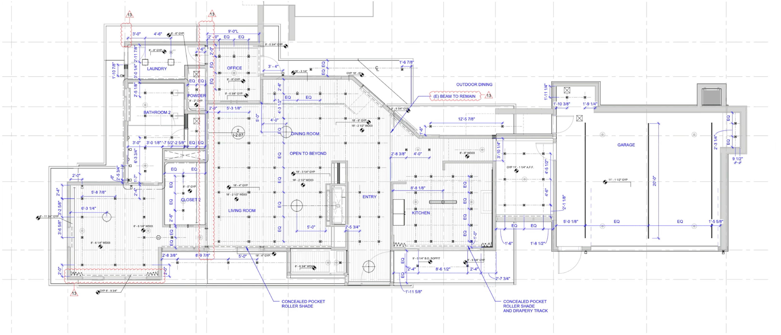
At As-Built Homes, capturing the story of your home’s construction isn’t just about snapping pictures - it’s about creating a comprehensive visual record that serves you for years to come. The foundation of this process is a carefully crafted shot list, and it all begins with your blueprints.
What’s in it for a Homeowner?
A house is so much more than walls and a roof. It’s a labor of love, a canvas for self-expression, a sanctuary from the world, and - above all - a home. On the financial side, it’s also one of the biggest investments you’ll ever make. That’s why As-Built Homes is here: to safeguard both the heart and the value of your home, today and for years to come.
Shooting Our Shot
At As-Built Homes, capturing the story of your home’s construction isn’t just about snapping pictures - it’s about creating a comprehensive visual record that serves you for years to come. The foundation of this process is a carefully crafted shot list, and it all begins with your blueprints.
Home Second Home
More than half of the homes in Pitkin County are second homes. While owning a second home in Aspen is a remarkable investment in both lifestyle and real estate, it brings unique challenges - especially when it comes to building, maintaining, and protecting your property when a homeowner is not local.
A DAM Good Solution
When you invest in construction documentation with As-Built Homes, you’re not just getting high-resolution photos - you’re gaining access to a powerful, secure Digital Asset Management (DAM) system.
It’s A Well-Built Process
At As-Built Homes, we like to say our work isn’t rocket science - but it is meticulous, detailed, and time-consuming. Our mission is to make things simple for you, the homeowner, so you can enjoy peace of mind while we manage the back end. Here’s how our process works, step by step.
Why As-Built Homes?
As-Built Homes - complete with accurate, up-to-date high resolution photography and videography - serves as the shared perspective every stakeholder can rely on before, during, and after construction.

